Scegliere una stufa o un caminetto per riscaldare la propria casa è un’ottima scelta, sia dal punto di vista economico che di tutela dell’ambiente. Ci sono dei casi in cui installarli non è proprio possibile? Con la nostra consulenza abbiamo selezionato alcune domande tipo, per approfondire le diverse soluzioni tecniche esistenti. Scoprirete che stufe e camini possono essere installati in edifici e ambienti molto diversi, perfino in condominio o in camera da letto. Con l’aiuto di un buon rivenditore o installatore sarà facile individuare la soluzione che fa al caso vostro.
Posso installare una stufa o un caminetto in condominio?
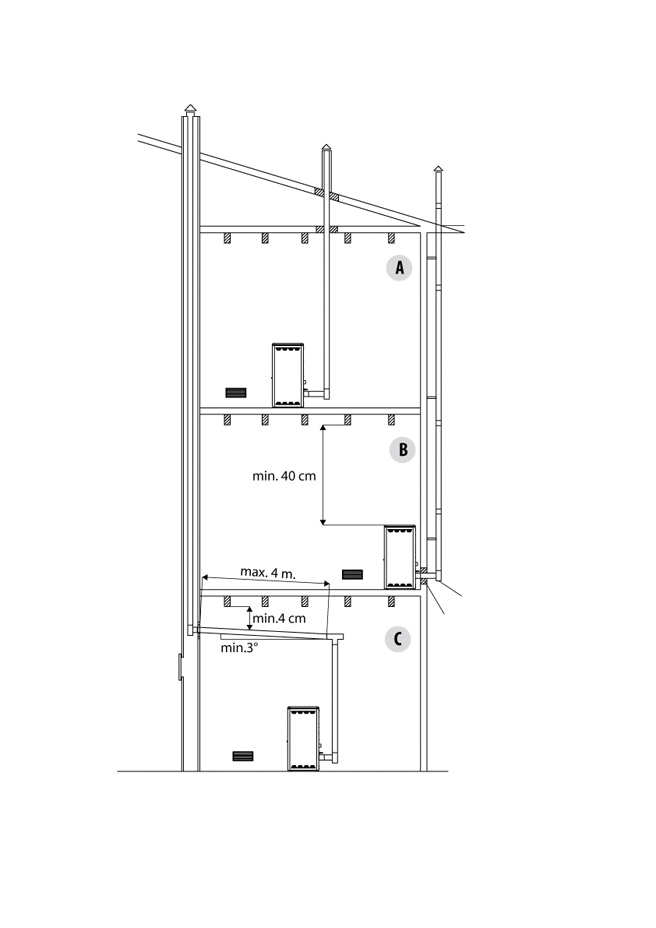
Anche se vivete in appartamento e non in una casa indipendente, in molti casi è possibile installare un prodotto a pellet o a legna. La prima cosa da fare è verificare se esistono già delle canne fumarie nell’edificio che possono essere utilizzate, ricordando però che ogni generatore di calore deve smaltire i fumi attraverso il proprio impianto. Se va installata una nuova canna fumaria, bisogna verificare che il regolamento condominiale permetta di forare parti comuni dell’edificio (pareti, solaio) per raggiungere il colmo del tetto. Qui di seguito, vi proponiamo tre soluzioni di canne fumarie realizzate in un condominio per l’installazione di una stufa a pellet.

SOLUZIONE A: la canna fumaria “buca” il solaio e raggiunge direttamente il colmo del tetto; è la soluzione più semplice quando si vive in un attico all’ultimo piano.
SOLUZIONE B: dalla stufa esce un tubo “a parete” che raggiunge direttamente una canna fumaria realizzata all’esterno dell’edificio e ben ancorata a muro; questa soluzione, se il regolamento condominiale lo permette, è utile quando si vive nei piani intermedi.
SOLUZIONE C: in questo caso esiste già una canna fumaria nell’edificio ed è sufficiente realizzare un raccordo fumi con un determinato andamento per raggiungerla; il raccordo è il più verticale possibile se parliamo di prodotti a legna, può essere anche quasi orizzontale con una leggera inclinazione se parliamo di prodotti a pellet.
Non ho una canna fumaria, posso comunque installare una stufa?
Certo, realizzando una canna fumaria ad hoc. A volte capita, soprattutto con le stufe a pellet, di sentirsi dire: “Basta un foro nel muro e il gioco è fatto!”. Non è così. Questo tipo di installazione, detta “a parete”, è una pratica che non è soltanto fuori norma, ma è anche dannosa per la salute e per la sicurezza. I fumi, che siano di legna o di gas metano, vanno scaricati per legge oltre il colmo del tetto, perché la combustione, qualunque essa sia, genera sostanze nocive per l’apparato respiratorio. Se si fa il semplice “buco nel muro”, i residui della combustione vengono scaricati ad altezza uomo, danneggiando la qualità dell’aria che respiriamo. Tutti i produttori, inoltre, sconsigliano fortemente questo tipo di installazione e addirittura fanno decadere la garanzia sul prodotto se viene installato in questo modo. Con lo scarico fumi a parete, infatti, la stufa può non raggiungere le prestazioni dichiarate (soprattutto in termini di resa), focolare e vetro possono rimanere costantemente anneriti dagli incombusti e, nei casi peggiori, c’è il rischio di ritorni di fumo e di monossido di carbonio nella stanza in cui la stufa è installata.

Dove installare una stufa o un camino? Si può in bagno, camera o nel monolocale?
In generale, si consiglia di installare la stufa nella zona più fredda o umida della casa e comunque nella stanza in cui si vuole avere più caldo, si passa più tempo e si può godere più a lungo della presenza del fuoco. Secondo la UNI 10683 del 2012 (la norma di riferimento per l’installazione di stufe e caminetti), in bagni, camere da letto e monolocali è possibile installare una stufa o un caminetto, con queste accortezze:
a) deve essere una stufa di tipo “stagno” o “ermetico”: sono definite in questo modo le stufe che non prelevano ossigeno dall’ambiente in cui sono installate, ma solo dall’esterno;
oppure
b) deve essere una stufa o un caminetto a focolare chiuso con prelievo canalizzato dell’aria comburente dall’esterno: questo significa che la presa d’aria deve far affluire ossigeno direttamente da fuori e non, ad esempio, da una stanza attigua.
È importante, infine, ricordare che per garantire la corretta ossigenazione, qualunque prodotto “a fuoco” va installato in una stanza con volume minimo di 30 metri cubi (circa 10-11 metri quadri).
Posso incassare la stufa o il camino in una nicchia, una parete-libreria o vicino alla tv?
Sono soluzioni non solo possibili, ma anche esteticamente di grande effetto. Le uniche indicazioni da rispettare scrupolosamente sono:
- le distanze minime da pareti e materiali (infiammabili e non);
- l’utilizzo dell’adeguato isolamento, visto che l’apparecchio stesso, la canna fumaria e la controcappa raggiungono elevate temperature;
- il corretto dimensionamento delle prese d’aria, necessarie perché nel focolare affluisca costantemente l’ossigeno che serve alla combustione.
Si tratta di indicazioni specifiche per ogni prodotto, che si trovano nelle schede tecniche o nei manuali d’uso. Un buon installatore saprà sicuramente trovare la soluzione più adatta al vostro caso.
Come faccio a scegliere la stufa o il caminetto adatto?
Scegliere il prodotto giusto non è solo questione di estetica e di design. Si tratta prima di tutto di chiarire le proprie esigenze: che cosa voglio riscaldare con la mia stufa o il mio caminetto? Mi basta un focolare d’appoggio, che mi allieti di tanto in tanto con la sua fiamma, oppure ho bisogno di un sistema che sostituisca in parte o in toto la mia caldaia tradizionale?
Una volta capito cosa vogliamo, potremo stabilire la potenza del generatore di calore (i famosi kilowatt), che dipende dal volume totale da riscaldare, dal grado di isolamento e dalla posizione della casa. Possiamo farci una prima idea da soli e poi, con l’aiuto di un bravo rivenditore o installatore e con un sopralluogo tecnico sul posto, arrivare a scegliere il prodotto più giusto per il nostro caso. Il sopralluogo tecnico è un passaggio necessario, perché le nostre case non sono tutte uguali e non è sempre facile valutare da soli le caratteristiche dell’ambiente di installazione.





Lascia un commento